登 录
注 册
当前位置 :
咨询答复
> 详情
返 回
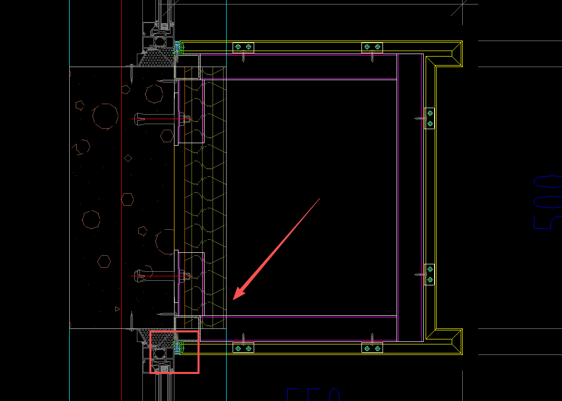
问题类型:建筑装饰 | 发布时间:2025-11-07 13:17:17
问题内容:19定额计算规则中,铝板幕墙计算规则为以框外围面积计算;是可视展开面积还是图示展开面积啊?例如附件图片
答复意见:按图示展开面积计算!
问题附件:
查看