登 录
注 册
当前位置 :
咨询答复
> 详情
返 回
问题类型:建筑装饰 | 发布时间:2025-09-11 07:55:07
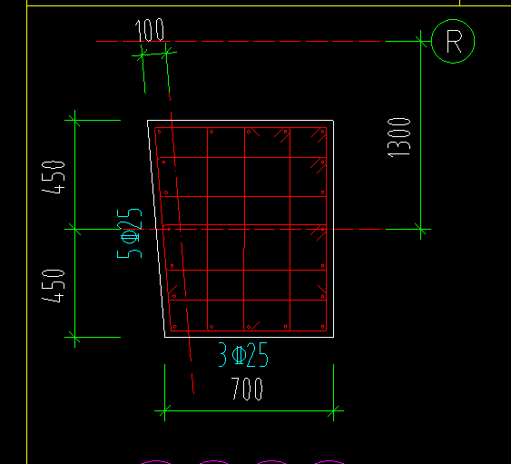
问题内容:2019定额中异形柱如何定义?(定额中解释:多肢混凝土墙墙厚≤0.3m,最长肢长厚比≤4执行异形柱,最长肢长厚比在4~8执行短肢剪力墙,最长肢截面高厚比>8执行直形墙定额,墙肢长按墙肢中心线计算。单肢混凝土墙墙厚≤0.3m,长厚比≤4执行矩形柱)现在类似图片中的柱子属于矩形柱还是异形柱?
答复意见:属于异形柱!
问题附件:
查看